Назовите оператору контакт центра при звонке ваш промокод:    

Безопасная аренда

Подробнее

Онлайн просмотры и договор с цифровой подписью

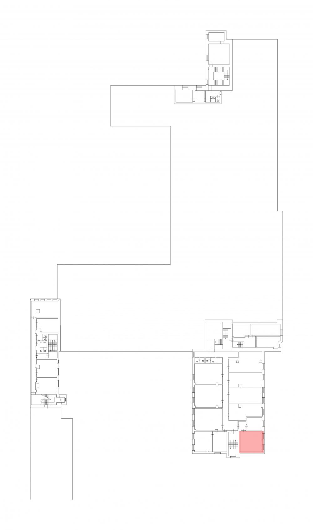
Помещение
Этаж 3
Площадь 36.8 м2
Ставка 1 399 руб./м2
Характеристики
Безопасность
Охрана Круглосуточная
Коммуникации
Телефон есть
Интернет оптоволокно
В арендную плату входит
  • Профессиональное управление
  • НДС
Оплачивается отдельно
  • Клининг
План помещения
Описание
Художественная студия в престижном БЦ Московского района.
Адрес: ул. Заозерная, дом 8.
Метро: "Технологический институт".
Район: Московский.
Этаж: 3.

Интерьер:
*Светлая и просторная планировка.
*Качественная отделка.
*Естественное освещение.

Атмосфера:
*Творческая среда.
*Комфортные условия для занятий.
*Пространство для самовыражения.

Коммуникации:
*Высокоскоростной интернет.
*Цифровая телефония.
*Пожарная сигнализация.

Безопасность:
*Круглосуточная охрана.
*Система контроля доступа.
*Электронные пропуска.

Удобства:
*Благоустроенный двор.
*Парковка для посетителей.
*Развитая инфраструктура района.

Транспортная доступность:
*Близость к метро.
*Удобная логистика.
*Хорошая транспортная развязка.

Возможности использования:
*Занятия живописью.
*Рисование.
*Мастер-классы.
*Выставочное пространство.

Студия идеально подходит для творческих занятий благодаря:
*Светлому и просторному помещению.
*Качественной отделке.
*Удобному расположению.
*Наличию всех коммуникаций.
*Высокому уровню безопасности.

Создайте свою художественную студию в современном бизнес-центре!
Свяжитесь с нами для организации просмотра и обсуждения условий аренды.
+7 (812) 292-46-45
Перезвоните мне
Хотите посмотреть? Покажем вам это помещение и несколько похожих
Запишитесь на просмотр
Вас также может заинтересовать
82.6 м2
59 389.4 руб
229.1 м2
251 780.9 руб