Назовите оператору контакт центра при звонке ваш промокод:    

Безопасная аренда

Подробнее

Онлайн просмотры и договор с цифровой подписью

Помещение
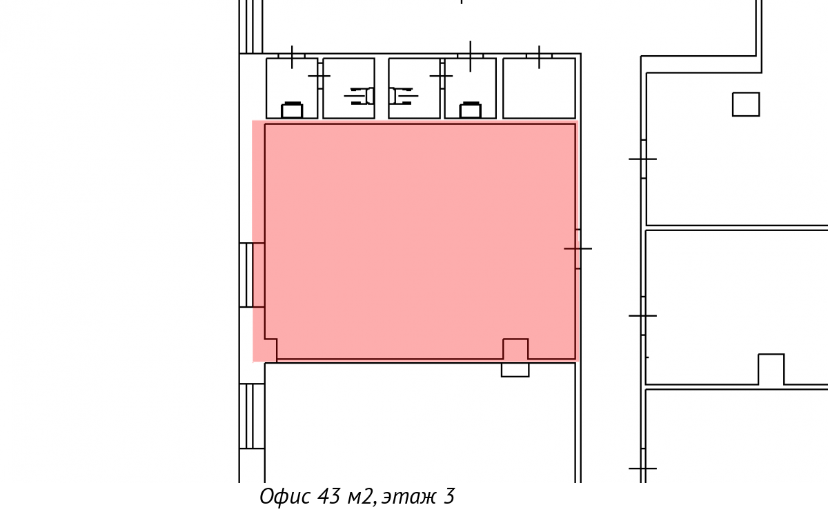
Этаж 3
Площадь 43.1 м2
Ставка 1 148 руб./м2
Характеристики
Безопасность
Охрана Круглосуточная
Коммуникации
Телефон есть
Интернет оптоволокно
В арендную плату входит
  • Профессиональное управление
  • НДС
Оплачивается отдельно
  • Клининг
План помещения
Описание
Предлагается в аренду офисное помещение под кабинет бухгалтерии в Московском районе.
Площадь 43,1 кв. м.

Расположено на 2 этаже здания по адресу: ул. Заозерная, дом 8.
Шаговая доступность от станции метро "Технологический институт".

Отделка: окрашенные обои, ламинат на полу, потолок "Армстронг".
Оснащение: отопление ,освещение, пожарная сигнализация.
Услуги: цифровая телефония, высокоскоростной интернет, клининг.
Санузел на этаже.

На территории есть парковка.
Действует контрольно-пропускная система.
Охрана 24/7.

Более подробную информацию уточняйте у менеджеров колл-центра.
+7 (812) 292-46-45
Перезвоните мне
Хотите посмотреть? Покажем вам это помещение и несколько похожих
Запишитесь на просмотр
Вас также может заинтересовать
82.6 м2
59 389.4 руб
229.1 м2
251 780.9 руб