Назовите оператору контакт центра при звонке ваш промокод:    

Безопасная аренда

Подробнее

Онлайн просмотры и договор с цифровой подписью

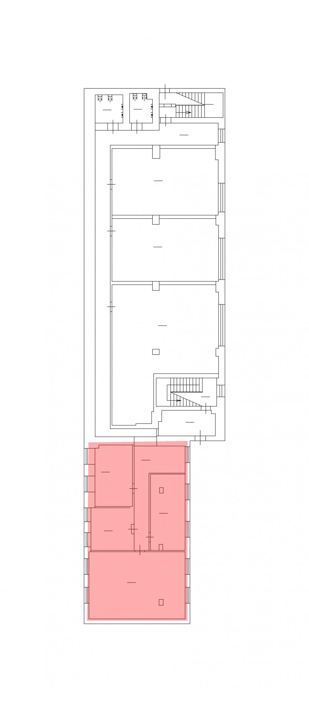
Помещение
Этаж 1
Площадь 159.4 м2
Ставка 850 руб./м2
Характеристики
Безопасность
Охрана Круглосуточная
Коммуникации
Телефон есть
Интернет оптоволокно
В арендную плату входит
  • Профессиональное управление
  • НДС
Оплачивается отдельно
  • Клининг
План помещения
Описание
Сдается в аренду офис вблизи станции метро "Фрунзенская".
Выполнен качественный ремонт, проведены интернет и телефония.

Оснащение: инженерные коммуникации, пожарная сигнализация.
Действуют круглосуточная охрана и пропускной режим.

Рядом выезд на Московский проспект и Обводный канал.
В стоимость аренды входит НДС.
+7 (812) 292-46-45
Перезвоните мне
Хотите посмотреть? Покажем вам это помещение и несколько похожих
Запишитесь на просмотр
Вас также может заинтересовать
82.6 м2
59 389.4 руб
229.1 м2
251 780.9 руб