Назовите оператору контакт центра при звонке ваш промокод:    

Безопасная аренда

Подробнее

Онлайн просмотры и договор с цифровой подписью

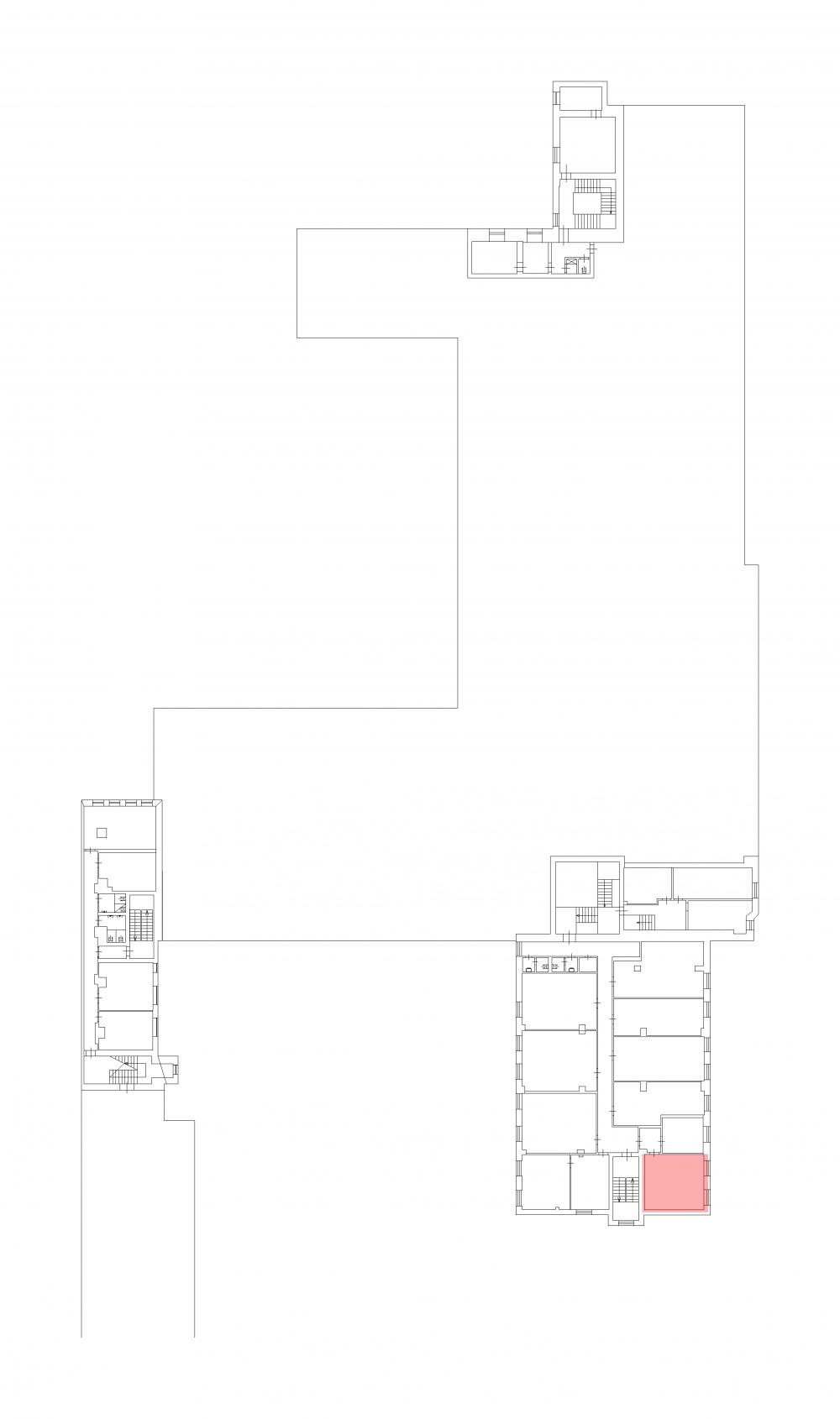
Помещение
Этаж 3
Площадь 36.4 м2
Ставка 1 253 руб./м2
Характеристики
Безопасность
Охрана Круглосуточная
Коммуникации
Телефон есть
Интернет оптоволокно
В арендную плату входит
  • Профессиональное управление
  • НДС
Оплачивается отдельно
  • Клининг
План помещения
Описание
Стильный офис для digital-агентства в деловом центре Московского района.
Адрес: ул. Заозерная, дом 8.
Метро: "Технологический институт".
Этаж: 3.
Район: Московский.

Интерьер:
*Светлая современная отделка.
*Пространство для креативных решений.
*Естественное освещение.

Техническое оснащение:
*Высокоскоростной интернет.
*Цифровая телефония.
*Пожарная сигнализация.

Рабочая среда:
*Просторное светлое помещение.
*Возможность создания open space.
*Зоны для командных встреч.

Коммуникации:
*Стабильный интернет.
*Качественная связь.
*Современные технологии.

Удобства:
*Благоустроенный двор.
*Парковка для сотрудников.
*Развитая инфраструктура района.

Транспортная доступность:
*Близость к метро.
*Удобная логистика.
*Хорошая транспортная развязка.

Офис идеально подходит для digital-агентства благодаря:
*Современной атмосфере.
*Высокой скорости интернета.
*Удобному расположению.
*Возможности создания комфортного рабочего пространства.
*Наличию всех необходимых коммуникаций.

Создайте современное digital-пространство для вашей команды!
Свяжитесь с нами для организации просмотра и обсуждения условий аренды.
+7 (812) 292-46-45
Перезвоните мне
Хотите посмотреть? Покажем вам это помещение и несколько похожих
Запишитесь на просмотр
Вас также может заинтересовать
82.6 м2
59 389.4 руб
229.1 м2
251 780.9 руб