Назовите оператору контакт центра при звонке ваш промокод:    

Безопасная аренда

Подробнее

Онлайн просмотры и договор с цифровой подписью

Помещение
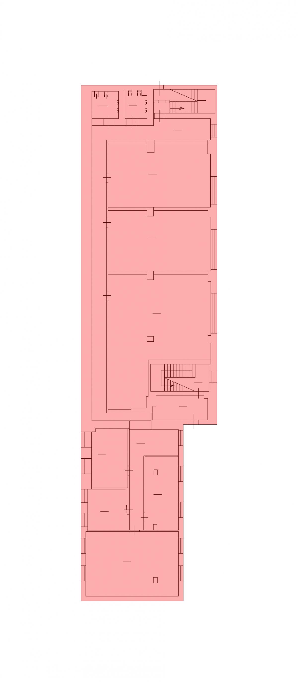
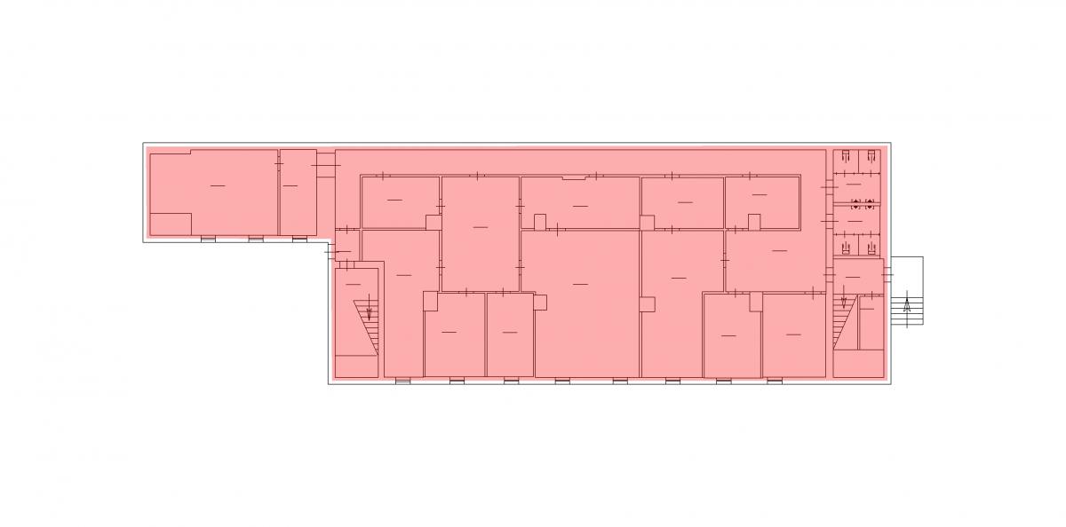
Этаж 1
Площадь 12 931.9 м2
Ставка 2 690 руб./м2
Характеристики
Безопасность
Охрана Круглосуточная
Коммуникации
Телефон есть
Интернет оптоволокно
В арендную плату входит
  • Профессиональное управление
  • НДС
Оплачивается отдельно
  • Клининг
План помещения
Описание
Аренда отдельно стоящих офисных зданий общей площадью 12931.9 кв. м на территории технопарка "Заозерная".
Технопарк расположен в Московском районе, в центре Санкт-Петербурга.
Вблизи объекта находятся крупные транспортные артерии города – набережная Обводного канала, Московский проспект, Измайловский проспект.

Станция метро "Технологический Институт" расположена в десятиминутной шаговой доступности.

Выполнена качественная отделка помещений.
Офисы оснащены охранно-пожарной сигнализацией, системой контроля доступа, высокоскоростным интернетом, цифровой телефонией.
В 2013 году была завершена реконструкция зданий.
На территории имеется парковка на 200 машиномест.

АКЦИЯ: Парковка в подарок
+7 (812) 292-46-45
Перезвоните мне
Хотите посмотреть? Покажем вам это помещение и несколько похожих
Запишитесь на просмотр
Вас также может заинтересовать
82.6 м2
59 389.4 руб
229.1 м2
251 780.9 руб