Назовите оператору контакт центра при звонке ваш промокод:    

Безопасная аренда

Подробнее

Онлайн просмотры и договор с цифровой подписью

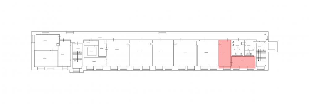
Помещение
Этаж 4
Площадь 42.4 м2
Ставка 895 руб./м2
Характеристики
Безопасность
Охрана Круглосуточная
Коммуникации
Телефон есть
Интернет оптоволокно
В арендную плату входит
  • Профессиональное управление
  • НДС
Оплачивается отдельно
  • Клининг
План помещения
Описание
По адресу: улица Заозёрная, дом 8 в аренду сдаётся блок площадью 42.4 кв. м под офис.

Выполнен ремонт, проведены электричество, отопление и освещение.
Блок расположен на 4-м этаже БЦ.
Кабинетная планировка.
Дополнительно предоставляются услуги пользования интернетом и телефонией.

Безопасность на объекте обеспечена круглосуточной охраной.
Действует контрольно-пропускной режим.

В 10 минутах ходьбы расположена станция метро "Технологический Институт".
+7 (812) 292-46-45
Перезвоните мне
Хотите посмотреть? Покажем вам это помещение и несколько похожих
Запишитесь на просмотр
Вас также может заинтересовать
82.6 м2
59 389.4 руб
229.1 м2
251 780.9 руб