Назовите оператору контакт центра при звонке ваш промокод:    

Безопасная аренда

Подробнее

Онлайн просмотры и договор с цифровой подписью

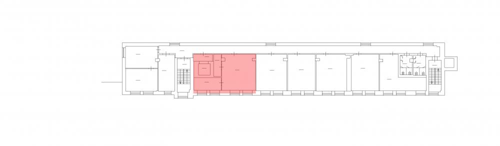
Помещение
Этаж 2
Площадь 85.7 м2
Ставка 959 руб./м2
Характеристики
Безопасность
Охрана Круглосуточная
Коммуникации
Телефон есть
Интернет оптоволокно
В арендную плату входит
  • Профессиональное управление
  • НДС
Оплачивается отдельно
  • Клининг
План помещения
Описание
Сдаётся в аренду офисный блок на Заозёрной ул., д.8.

2-й этаж БЦ.
Кабинетная планировка.

Выполнен евроремонт.
Оснащение: освещение, пожарная сигнализация, отопление, освещение.

Круглосуточная охрана.
+7 (812) 292-46-45
Перезвоните мне
Хотите посмотреть? Покажем вам это помещение и несколько похожих
Запишитесь на просмотр
Вас также может заинтересовать
82.6 м2
59 389.4 руб
229.1 м2
251 780.9 руб