Назовите оператору контакт центра при звонке ваш промокод:    

Безопасная аренда

Подробнее

Онлайн просмотры и договор с цифровой подписью

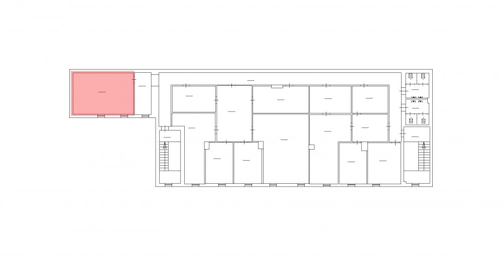
Помещение
Этаж 2
Площадь 37.4 м2
Ставка 1 109 руб./м2
Характеристики
Безопасность
Охрана Круглосуточная
Коммуникации
Телефон есть
Интернет оптоволокно
В арендную плату входит
  • Профессиональное управление
  • НДС
Оплачивается отдельно
  • Клининг
План помещения
Описание
Сдается в аренду помещение под проектное бюро площадью 37.4 кв. м. на 2 этаже здания по адресу: ул. Заозерная, дом 8.
Шаговая доступность от метро "Технологический Институт".

Отделка: окрашенные обои, ламинат на полу, потолок "Армстронг".
Коммуникации: цифровая телефония, высокоскоростной интернет.
Оснащение: отопление, освещение, электроснабжение.

Действует контрольно-пропускная система.
Круглосуточная охрана

В стоимость входит НДС.
Более подробную информацию уточняйте у менеджеров колл-центра.
+7 (812) 292-46-45
Перезвоните мне
Хотите посмотреть? Покажем вам это помещение и несколько похожих
Запишитесь на просмотр
Вас также может заинтересовать
82.6 м2
59 389.4 руб
229.1 м2
251 780.9 руб